Bismarckallee
Grunewald, Berlin
Jahr: 2014 – 2017
Größe: 350 m² BGF Neubau
Stadtvilla mit Natursteinfassade: Kompakte Eleganz auf historischem Grundstück
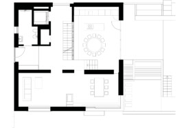
Auf einem eingewachsenen Villengrundstück in Berlin entstand ein kompakter, vielgestaltiger Kubus aus Naturstein. Der Baukörper wurde auf einer vorhandenen Geländeerhebung errichtet und musste mit einer Grundfläche von 11,5 x 11,5 Metern auskommen. Durch die Abfolge von Souterrain, Erdgeschoss, Zwischen- und Staffelgeschoss ergibt sich eine fast turmartige Erscheinung.
Die Fassade prägt ein Serpentinit aus Graubünden, der Verde Andeer. Seine grau-grüne Farbgebung betont den monolithischen Charakter des Bauwerks. Um Fugenbildungen an den Hausecken zu vermeiden, wurden dort besonders massive Natursteine eingesetzt. Der Stein setzt sich auch in den Außenbereichen fort und verbindet das Gebäude mit seinem Garten.
Die beiden unteren Ebenen öffnen sich ebenerdig zu den jeweiligen Gartenseiten. Das Erdgeschoss, als offener Wohnraum konzipiert, bildet den Mittelpunkt des Hauses. Im obersten Geschoss liegen der private Schlafbereich und eine Dachterrasse. Weiße Wände und Decken in Kombination mit Holzoberflächen schaffen ein ruhiges, natürliches Ambiente.








































Bismarckallee
Grunewald, Berlin
Jahr: 2014 – 2017
Größe: 350 m² BGF Neubau
Stadtvilla mit Natursteinfassade: Kompakte Eleganz auf historischem Grundstück
Auf einem eingewachsenen Villengrundstück in Berlin entstand ein kompakter, vielgestaltiger Kubus aus Naturstein. Der Baukörper wurde auf einer vorhandenen Geländeerhebung errichtet und musste mit einer Grundfläche von 11,5 x 11,5 Metern auskommen. Durch die Abfolge von Souterrain, Erdgeschoss, Zwischen- und Staffelgeschoss ergibt sich eine fast turmartige Erscheinung.
Die Fassade prägt ein Serpentinit aus Graubünden, der Verde Andeer. Seine grau-grüne Farbgebung betont den monolithischen Charakter des Bauwerks. Um Fugenbildungen an den Hausecken zu vermeiden, wurden dort besonders massive Natursteine eingesetzt. Der Stein setzt sich auch in den Außenbereichen fort und verbindet das Gebäude mit seinem Garten.
Die beiden unteren Ebenen öffnen sich ebenerdig zu den jeweiligen Gartenseiten. Das Erdgeschoss, als offener Wohnraum konzipiert, bildet den Mittelpunkt des Hauses. Im obersten Geschoss liegen der private Schlafbereich und eine Dachterrasse. Weiße Wände und Decken in Kombination mit Holzoberflächen schaffen ein ruhiges, natürliches Ambiente.